Stell dir eine versteckte Perle an der lebhaften Adriaküste vor – eine charmante Villa, nur einen Steinwurf entfernt vom malerischen Roseto degli Abruzzi. Dieses großzügige Anwesen ruht friedlich, so als wäre es in einen zeitlosen Schlummer gefallen, bereit, durch Zuneigung und Sorgfalt zu neuem Leben erweckt zu werden.
Die Villa besticht durch ihre atemberaubende Lage und bietet von ihrer erhöhten Position aus einen majestätischen Blick auf das schimmernde adriatische Meer. Während die sanfte Meeresbrise durch die offenen Fenster weht, könnt ihr den Blick über das weite Blau schweifen lassen, das in der Ferne mit dem Himmel verschmilzt.
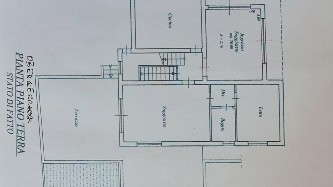
Obwohl die Villa bereits über eine ansprechende Struktur und grundsolide Bausubstanz verfügt, wartet sie doch darauf, von euch und eurem handwerklichen Geschick zur Perfektion gebracht zu werden. Die riesige Terrasse bietet einen perfekten Ort für ausschweifende Feste oder stille Abendessen bei Sonnenuntergang, während ihr den Meerblick genießt.
Obwohl die Villa ihre Schönheit noch versteckt hält, birgt das Grundstück selbst enormes Potenzial. Es bietet ausreichend Platz für ein blühendes mediterranes Paradies, inklusive einheimischer Pflanzen, Olivenbäume und vielleicht sogar einen Pool, der den Glamour der italienischen Riviera widerspiegelt.
Innerhalb der Mauern dieser Villa wartet echtes „dolce Vita“ – süßes Leben, das nur darauf wartet, entdeckt zu werden. Mit ein wenig Hingabe werden die Hallen dieser Villa bald von Lachen und Leben erfüllt sein, ein zu Hause, das ihr und eure Lieben in den Bann ziehen und nie wieder loslassen wird.
Dies ist kein gewöhnlicher Immobilienkauf – es ist die Investition in einen Traum, die Schaffung eines Lebensstils, der Luxus, Komfort und italienische Lebensfreude vereint. Lasst euch vom Charme dieser schlafenden Schönheit fesseln und werdet zum Helden eurer eigenen italienischen Märchengeschichte, indem ihr das Potenzial dieses Anwesens entfaltet.
Meer und majestätische Berge sind nur zwei der unverwechselbaren Charakteristiken der Region. Zwischen diesen beiden Extremen liegt liebliches Hügelland, das sich Sommer wie Winter facettenreich präsentiert. Und so verwundert es kaum, dass die Adria-Region im Südosten des Stiefels ein Traum für Naturliebhaber ist. Der Nationalpark der Abruzzen und zahlreiche Naturreservate runden dieses Bild ab. Die Naturfaszination spiegelt sich darüber hinaus in Grotten, Thermalquellen und Seen auf vielfältige Weise wider.
Mit den Landschaften und den Jahreszeiten wechseln in den Abruzzen auch die Speisekarten. Fast jede Landschaft trägt ihre lokalen Speisen auf. Insgesamt ist die Küche von vielen heimischen Zutaten geprägt. Wo die Wirtschaft Jahrtausende lang auf Schäferei gegründet war, gehören Lammgerichte und Pecorino, ein herzhafter Schafskäse, auf den Speiseplan.
Außerdem gibt es vor allem im Landesinneren hervorragende Wurstsorten und Wildgerichte, während Fisch aller Arten den Speiseplan entlang der Küste dominiert. Die Auswahl des abschließenden Dolce kann in den Abruzzen zu einer süßen Qual werden, sich zwischen leckeren Kuchenspezialitäten und fantasievollen Kreationen aus Eis, Panna Cotta u.v.a.m. zu entscheiden.
Hervorragende Weine wie beispielsweise der Montepulciano d`Abruzzo oder der Trebbiano begleiten die Speisenfolge. Sehr attraktiv ist der 129 Kilometer lange Küstenstreifen der Region. Flache und goldene Sandstrände versprechen von Martinsicuro bis Francavilla Badespaß für Familien, während Felsenküste, Klippen, versteckte Buchten und kleine Häfen das Bild abrunden.






































